Сколько времени занимает установка?
ГОТОВЫЕ
МОДУЛЬНЫЕ БАНИ
МОДУЛЬНЫЕ БАНИ
для бизнеса
и частного использования
ГОТОВЫЕ
МОДУЛЬНЫЕ
БАНИ
МОДУЛЬНЫЕ
БАНИ
для бизнеса
и частного использования
и частного использования
ГОТОВЫЕ, В НАЛИЧИИ
Не нужно ждать строительства. Доставим сразу после подписания договора.
ВСЕ ВКЛЮЧЕНО
С мебелью, техникой, предметами интерьера, веники, дрова...
БЕСПЛАТНЫЙ МОНТАЖ
Доставим и установим к вам на участок.
ВИДЕООБЗОР БАНИ
КОНЦЕПЦИЯ:
Модульные бани линейки «PRO» от компании «A1-МОДУЛЬ» проектируют и строят с учетом особенностей культурных исторических традиций русской бани и парения вениками, и в то же время учитывают современные тенденции в архитектуре, дизайне и используют современные технологические решения. В производстве линейки каркасно-модульных бань «PRO» от компании «А1-МОДУЛЬ» учтен многолетней опыт строительства и использования модульных бань и внедрены рекомендации и пожелания от лучших пар-мастеров России.
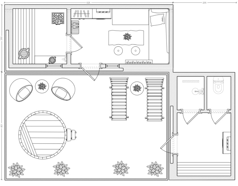
Модульные баня от компании «A1-МОДУЛЬ» это уникальный продукт, полностью готовый под ключ и наполненный всем необходимым для комфортного использования: мебелью, оборудованием, декором, элементами интерьера и даже расходными материалами. В планировочных решениях серии бань «PRO» эффективно и рационально использован каждый квадратный сантиметр. Все пространство внутри бани полезно: есть места для хранения одежды, обуви, веников, предметов гигиены; есть место посидеть – покушать компании людей; полежать, подремать, сушить голову, помыться, пропариться; есть отдельный уголок пар-мастера, для проведения банных ритуалов – и при всем этом еще остается место и ощущения простора. Баня предназначена для частного и коммерческого использования. Бани строятся из качественных материалов с соблюдением всех строительных норм и правил и имеют большую гарантию от производителя, но не имеют аналогов по функциональности, стилю, дизайну и комплектации – поэтому позволить купить такую баню могут только настоящие ценители и знатоки качественных продуктов.
Размеры модулей бань строятся в габарите перевозки - что позволяет делать доступной по стоимости транспортировку и установку на большую удаленность от производства.
Модульные баня от компании «A1-МОДУЛЬ» это уникальный продукт, полностью готовый под ключ и наполненный всем необходимым для комфортного использования: мебелью, оборудованием, декором, элементами интерьера и даже расходными материалами. В планировочных решениях серии бань «PRO» эффективно и рационально использован каждый квадратный сантиметр. Все пространство внутри бани полезно: есть места для хранения одежды, обуви, веников, предметов гигиены; есть место посидеть – покушать компании людей; полежать, подремать, сушить голову, помыться, пропариться; есть отдельный уголок пар-мастера, для проведения банных ритуалов – и при всем этом еще остается место и ощущения простора. Баня предназначена для частного и коммерческого использования. Бани строятся из качественных материалов с соблюдением всех строительных норм и правил и имеют большую гарантию от производителя, но не имеют аналогов по функциональности, стилю, дизайну и комплектации – поэтому позволить купить такую баню могут только настоящие ценители и знатоки качественных продуктов.
Размеры модулей бань строятся в габарите перевозки - что позволяет делать доступной по стоимости транспортировку и установку на большую удаленность от производства.
СТИЛЬ И ДИЗАЙН:
Парная сделана с отсылкой традиций построения бань в северном регионе. Как правило – это был сруб из хвойных пород дерева с потолком из липы или осины и деревянными проливными полами. Так же в самой парной активно практиковали водяные процедуры. В банях мылись – использовали как ванную и душевую комнату. В самой парной использовали печи по-черному, дым выходил через окно в самой парной. Со временем пользования баней древесина темнела и становилась шоколадного оттенка. Так и отделка нашей парной выполнена в темном цвете. Отделка стен в наших парных выполнена из продольного спила бревна. В такой обработке – "как мужик топором в лесу обстрогал." Со всей природной и брутальной красотой древесины без лишнего лоска. Потолок и полог сделан из древесины лиственной породы – осины. К тому же «ОСИНА» в славянской культуре имеет сакральное значение. Дерево защитник от нечистой силы. Во многих сказаниях – нечистую силу можно лишь победить, забив осиновый кол.
Комната отдыха сделана в темных тонах, что при различных сценариях освещения придает ей особый уют. Вся мебель и детали интерьера гармонично подобраны и изготовлены с особой заботой о стиле. Выглядит все очень эффектно и гармонично. Дизайнеры проработали каждый элемент в помещениях таким образом, чтоб было не только красиво, но и функционально.
Комната отдыха сделана в темных тонах, что при различных сценариях освещения придает ей особый уют. Вся мебель и детали интерьера гармонично подобраны и изготовлены с особой заботой о стиле. Выглядит все очень эффектно и гармонично. Дизайнеры проработали каждый элемент в помещениях таким образом, чтоб было не только красиво, но и функционально.
ФУНКЦИОНАЛЬНОСТЬ:
Все пространство внутри бани полезно и функционально. Архитекторами проектировщиком и дизайнером максимально предусмотрено все необходимое. В бане большое количество мест для хранения: шкаф с распашными дверцами, комод с выдвижными ящиками, навесной зеркальный шкаф для предметов гигиены, выдвижные ящики-короба под лежанкой. Также есть навесные деревянные полки и навесные настенные вешалки-крючки для мелкой одежды, шапок и полотенец. Установлены отдельные дизайнерские полки для хранения банных веников и душистых трав. В бане даже есть место для утилизации мусора - современный электронный сенсорный мусорный бак.
Предусмотрено место для застолья - красивый и мощный дубовый стол и угловой гарнитур со спинками, дополнительные стильные стулья-пеньки. И конечно есть место, где можно полежать и расслабиться в комнате отдыха на мягкой перине после принятия банных процедур. Так же конструкция модулей позволяет отдельно устанавливать и наращивать площадь вашего банного комплекса. Нами разработан отдельный сантехнический модуль для бани - место где можете переодеться вы и ваши гости, и пользоваться душем и туалетом в отдельном помещении не смущая и не стесняя других гостей.
Предусмотрено место для застолья - красивый и мощный дубовый стол и угловой гарнитур со спинками, дополнительные стильные стулья-пеньки. И конечно есть место, где можно полежать и расслабиться в комнате отдыха на мягкой перине после принятия банных процедур. Так же конструкция модулей позволяет отдельно устанавливать и наращивать площадь вашего банного комплекса. Нами разработан отдельный сантехнический модуль для бани - место где можете переодеться вы и ваши гости, и пользоваться душем и туалетом в отдельном помещении не смущая и не стесняя других гостей.
ФУНКЦИОНАЛЬНОСТЬ:
Все пространство внутри бани полезно и функционально. Архитекторами проектировщиком и дизайнером максимально предусмотрено все необходимое. В бане большое количество мест для хранения: шкаф с распашными дверцами, комод с выдвижными ящиками, навесной зеркальный шкаф для предметов гигиены, выдвижные ящики-короба под лежанкой. Также есть навесные деревянные полки и навесные настенные вешалки-крючки для мелкой одежды, шапок и полотенец. Установлены отдельные дизайнерские полки для хранения банных веников и душистых трав. В бане даже есть место для утилизации мусора - современный электронный сенсорный мусорный бак.
Предусмотрено место для застолья - красивый и мощный дубовый стол и угловой гарнитур со спинками, дополнительные стильные стулья-пеньки. И конечно есть место, где можно полежать и расслабиться в комнате отдыха на мягкой перине после принятия банных процедур. Так же конструкция модулей позволяет отдельно устанавливать и наращивать площадь вашего банного комплекса. Нами разработан отдельный сантехнический модуль для бани - место где можете переодеться вы и ваши гости, и пользоваться душем и туалетом в отдельном помещении не смущая и не стесняя других гостей.
Предусмотрено место для застолья - красивый и мощный дубовый стол и угловой гарнитур со спинками, дополнительные стильные стулья-пеньки. И конечно есть место, где можно полежать и расслабиться в комнате отдыха на мягкой перине после принятия банных процедур. Так же конструкция модулей позволяет отдельно устанавливать и наращивать площадь вашего банного комплекса. Нами разработан отдельный сантехнический модуль для бани - место где можете переодеться вы и ваши гости, и пользоваться душем и туалетом в отдельном помещении не смущая и не стесняя других гостей.
ТЕХНОЛОГИЧНОСТЬ:
В бане использованы современные технологические решения по вентиляции, освещению, отоплению, канализации и водоснабжения. Установлена система "второе дыхание" в парной. Глоток свежего воздуха - комфорт в бане без перегрева. Продуманная вентиляция для комфортного парения - свежий прохладный воздух поступает с улицы прямо к лицу. Контурное освещение по фасаду, комнате отдыха и парной - не только создают расслабляющую спокойную атмосферу, но и превращают вашу баню в настоящий арт объект. Есть отдельная система для набора питьевой воды. А так же к комплектацию входит фен для сушки волос. Умное отопление за счет электрического ковра и настенного теплообогревателя с безопасным и эффективным керамическим нагревательным элементом...
Хотите знать больше свяжитесь с нами. Мы проведем вам демонстрацию и показ выставочных бань, а так же проведем вам самый настоящий банный ритуал парения, чтобы вы могли прочувствовать и ощутить все прелесть нашей бани...
Хотите знать больше свяжитесь с нами. Мы проведем вам демонстрацию и показ выставочных бань, а так же проведем вам самый настоящий банный ритуал парения, чтобы вы могли прочувствовать и ощутить все прелесть нашей бани...
ТЕХНОЛОГИЧНОСТЬ:
В бане использованы современные технологические решения по вентиляции, освещению, отоплению, канализации и водоснабжения. Установлена система "второе дыхание" в парной. Глоток свежего воздуха - комфорт в бане без перегрева. Продуманная вентиляция для комфортного парения - свежий прохладный воздух поступает с улицы прямо к лицу. Контурное освещение по фасаду, комнате отдыха и парной - не только создают расслабляющую спокойную атмосферу, но и превращают вашу баню в настоящий арт объект. Есть отдельная система для набора питьевой воды. А так же к комплектацию входит фен для сушки волос. Умное отопление за счет электрического ковра и настенного теплообогревателя с безопасным и эффективным керамическим нагревательным элементом...
Хотите знать больше свяжитесь с нами. Мы проведем вам демонстрацию и показ выставочных бань, а так же проведем вам самый настоящий банный ритуал парения, чтобы вы могли прочувствовать и ощутить все прелесть нашей бани...
Хотите знать больше свяжитесь с нами. Мы проведем вам демонстрацию и показ выставочных бань, а так же проведем вам самый настоящий банный ритуал парения, чтобы вы могли прочувствовать и ощутить все прелесть нашей бани...
ТЕХНОЛОГИЯ СТРОИТЕЛЬСТВА:
Все объекты компании А1-МОДУЛЬ строятся по каркасно-модульной технологии в сухом и теплом сборочном цеху, основанной на классической канадской и финской каркасно-строительной технологии, но доработанной из специфики того, что конструкции должны быть особо прочными и надежными, так как подвергаются дополнительным нагрузкам при перевозки готовых собранных модулей строительной техникой. Основа любого модуля - это силовой каркас, собранный из отборной экологически чистой и безопасной и идеально обработанной древесины хвойной породы - калиброванной, строганной, камерной сушки и обработанной огне-био защитой. Так же при сборке силового каркаса используются специальные усиленные конструкционные саморезе TORX. Утепляется каркас минеральной каменной ватой самого высокого класса декомпрессии и пожаробезопасности с применением высоко-прочных пленок влого-ветрозащитой и пароизоляцией 300 микрон, а так же с усилением основания листовым материалом из древесно-стружечных плит.
ТЕСТОВОЕ ПАРЕНИЕ:
Для желающих купить баню от компании «А1-МОДУЛЬ», есть специальная услуга - БЕСПЛАТНОЕ ТЕСТОВОЕ ПАРЕНИЕ. Профессиональный пар-мастер проведет вам банный ритуал в нашем выставочном банном комплексе, чтобы вы прочувствовали все возможности и прелести наших модульных бань.
Записаться на бесплатное тестовое парение, можно у менеджера по продажам после личной встречи и просмотра выставочной продукции компании. Тестовое парение абсолютно бесплатно - веники, полотенца, и прочие предметы, необходимые для парения предоставит наша компания.
Записаться на бесплатное тестовое парение, можно у менеджера по продажам после личной встречи и просмотра выставочной продукции компании. Тестовое парение абсолютно бесплатно - веники, полотенца, и прочие предметы, необходимые для парения предоставит наша компания.
ВОПРОСЫ И ОТВЕТЫ:
Можно ли построить баню по индивидуальному проекту?
Какой нужен фундамент?
Можно ли уменьшить стоимость, отказавшись от мебели и техники?
Где посмотреть выставочные образцы?
Как попасть на тестовое парение?
Нужно ли делать техническое обслуживание бани?
Не лопнет ли стекло в парной?
О КОМПАНИИ:
Компания «A1-МОДУЛЬ» занимается производством модульных домов и бань с 2022 года. На строительном рынке компания успела проявить себя, как надежный партнер и производитель. Этому подтверждение многочисленные построенные объекты для частного и коммерческого использования и положительные отзывы от наших заказчиков, в том числе и опубликованные в сети интернет. На собственном производстве мы изготавливаем полностью готовые под ключ с полной наружной и внутренней отделкой, мебелью, техникой и предметами интерьера и декора модульные дома и бани и устанавливаем их на участки заказчиков по всей России. С 2025 года компания взяла вектор на развитие направления банного строительства и разработала линейку, современных, функциональных, и в то же время отдающих дань историческим культурным традициям готовых модульных бань и банных комплексов. У компании есть выставочные бани, где все желающие не только могут узнать больше о модульных банях компании «A1-МОДУЛЬ», но и попариться, записавшись на услугу тестового парения.
ОТЗЫВЫ О КОМПАНИИ:
ОТЗЫВЫ О КОМПАНИИ:
ВИДЕООТЗЫВЫ
КОНТАКТЫ
офис/выставка:
г. Санкт-Петербург, пос. Парголово, Выборгское шоссе 212 (ОЗЕРКИ ЭКСПО)
г. Санкт-Петербург, пос. Парголово, Выборгское шоссе 212 (ОЗЕРКИ ЭКСПО)
производство:
Псковская область, Новоржевский мун.округ, д. Вёска
Псковская область, Новоржевский мун.округ, д. Вёска
+7 (812) 921-88-55, +7 (905) 220-63-62, +7 (904) 339-59-43
КОНТАКТЫ
офис/выставка:
г. Санкт-Петербург, пос. Парголово, Выборгское шоссе 212
(ОЗЕРКИ ЭКСПО)
г. Санкт-Петербург, пос. Парголово, Выборгское шоссе 212
(ОЗЕРКИ ЭКСПО)
производство:
Псковская область, Новоржевский мун.округ, д. Вёска
Псковская область, Новоржевский мун.округ, д. Вёска
+7 (812) 921-88-55
+7 (905) 220-63-62
+7 (904) 339-59-43
+7 (905) 220-63-62
+7 (904) 339-59-43